Používame cookies

Súbory cookie a ďalšie technológie sledovania používame na zlepšenie vášho zážitku z prehliadania našich webových stránok, na to, aby sme vám zobrazovali prispôsobený obsah a cielené reklamy, na analýzu návštevnosti našich webových stránok a na pochopenie toho, odkiaľ naši návštevníci prichádzajú. Viac info

 

P R E N Á J O M - nebytové priestory, Hlavná ulica, GALANTA

Ulica: ul. Hlavná
Obec: Galanta
Okres: Galanta
Kraj: Trnavský kraj
Druh: Priestory
Typ: Prenájom
Typ objektu: Obchodné priestory
990 €/mesiac

Popis nehnuteľnosti

P R E N Á J O M - lukratívne nebytové priestory - Galanta, ul. Hlavná 

Základné info:

  • Viacúčelový priestor v centre mesta
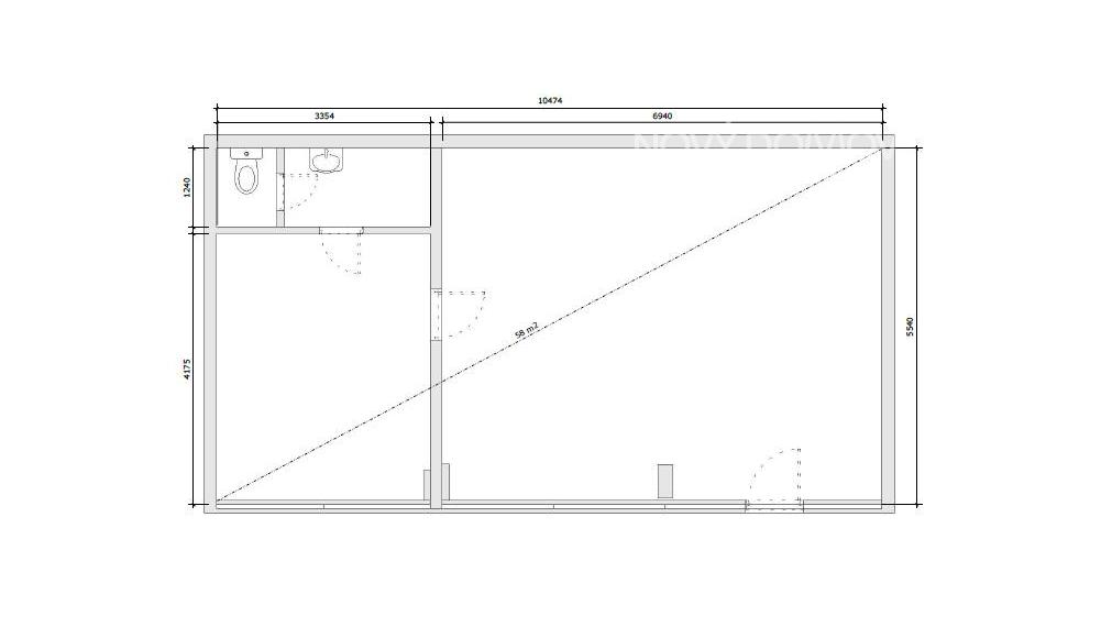
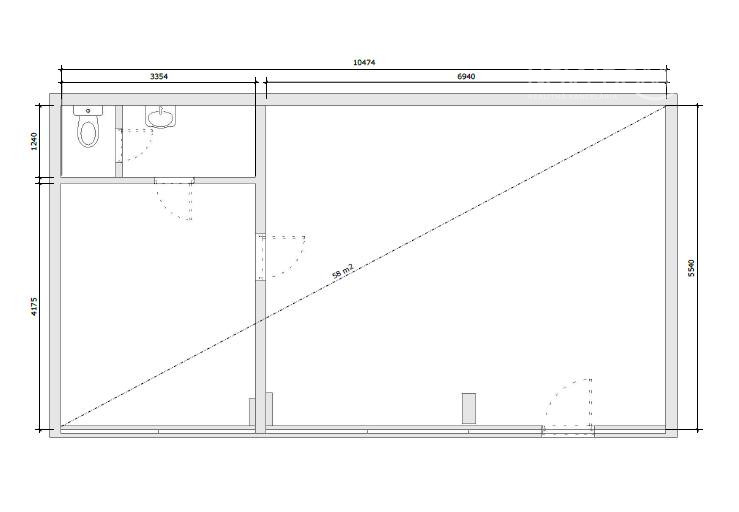
  • Výmera: 58 m2
  • Mesačný nájom: 990 €
  • Prevádzkové náklady nie sú v cene nájmu
  • Výborná viditeľnosť
  • K dispozícii od 01.02.2026 (príp. podľa dohody)

Dispozícia:

  • 3 miestnosti
  • Prevádzková miestnosť – 37,45 m2
  • Administratívna miestnosť – 14 m2
  • Technická miestnosť + WC – 4,16 m2
  • Prízemie, samostatný vchod z ulice

Okolie:

  • Objekt je situovaný priamo na Hlavnej ulici
  • Mestský park a kaštieľ v pešej dostupnosti
  • V blízkosti prevádzka pizzérie, kaviareň, reštaurácie, Lidl, COOP Jednota

Parkovanie:

  • Pozdĺžne na Hlavnej ulici
  • Možnosť parkovania aj za objektom v jeho tesnej blízkosti

Výhody nájmu:

  • Priestor je kompletne zrekonštruovaný
  • Svetlý, reprezentatívny, s výkladom do ulice
  • Výborná viditeľnosť a dostupnosť
  • Možnosť zmien interiéru aj dispozície podľa potrieb nájomcu
  • Vhodné na dlhodobý prenájom

Podmienky nájmu:

  • Pri prevzatí: poistenie + napojenie na pult centralizovanej ochrany

Platba pri podpise zmluvy:

  • Bežný nájom za aktuálny mesiac 990,- €
  • Depozit 2x nájom (1980,- €)
  • Sprostredkovateľská odmena 990,- €

Tipy na využitie:

  • Súkromné zdravotnícke a terapeutické ambulancie
  • Poisťovne, finančné a poradenské služby
  • Účtovné, advokátske či realitné kancelárie
  • IT a projektové a poradenské firmy
  • Technické / servisné služby
  • Estetické a kozmetické služby, masáže, welness
  • Gastro – kaviareň/espresso bar, cukráreň/dezert bar

Maklér:
Mgr. Oľga Baláž Kapronczai – 0910 965 265

━━━━━━━━━━━━━━━━━━

Vlastnosti

Status:
aktívne
Vlastníctvo:
osobné
Úžitková plocha:
58 m2
Zastavaná plocha:
58 m2
Skladová plocha:
14 m2
Stav:
úplne prerobený
Počet izieb:
3
Pozícia:
Prízemie
Celková plocha:
58 m2
Status:
aktívne
Vlastníctvo:
osobné
Úžitková plocha:
58 m2
Zastavaná plocha:
58 m2
Skladová plocha:
14 m2
Stav:
úplne prerobený
Počet izieb:
3
Pozícia:
Prízemie
Celková plocha:
58 m2

Pozrieť na mape

Maklér

Mgr. Oľga Baláž Kapronczai

Mgr. Oľga Baláž Kapronczai

maklér

  • Slovensky
  • English

Práca s nehnuteľnosťami bola mojim snom. Ako vyštudovaná právnička som sa však venovala právnej praxi a na realitnú činnosť mi akosi neostával čas. Možnosť pracovať ako realitný maklér sa mi vyskytla až počas rodičovskej dovolenky, keď som stretla môjho priateľa z detstva a súčasného kolegu Petra Wolfa, ktorý ma utvrdil v tom, že poctivo odvedená práca v oblasti realít prináša naozaj veľké rozhodnutia a výsledky v podobe nového bývania našich klientov.

Som presvedčená, že každá nehnuteľnosť si dokáže „nájsť svojho majiteľa“, stačí len počúvať, korektne a odborne pristupovať ku každému klientovi a vytrvalo sledovať trh s nehnuteľnosťami.

Radi Vám poradíme